低壓儲罐的氮封系統設計
2022-02-21 09:45:15
126


(1)工作壓力大于或者等于0.1Mpa(工作壓力是指壓力容器在正常工作情況下,其頂部可能達到的壓力(表壓力)); (不含液體靜壓力)
(2)內直徑(非圓形截面指其大尺寸)大于等于0.15m。且容積(V)大于等于0.025立方米,工作壓力與容積的乘積大于或者等于2.5MPa-L(容積,是指壓力容器的幾何容積);
(3)盛裝介質為氣體、液化氣體以及介質工作溫度高于或者等于其標準沸點的液體.,(2)GB 50341中式(1)用于 弱頂 結構。 弱頂 有三個條件,控制抗壓環截面積是其中一個條件,該式的要點在于:,在內壓作用下罐壁將被提離而尚未提離;第二,與此同時在內壓作用下抗壓環材料已達到其屈服強度。此時,當有一點外部干擾或結構自身存在某些微小缺陷時,抗壓環包邊角鋼便會屈曲進而從連接焊接處破裂泄壓,達到保護罐主體的目的。弱頂結構一般指支撐式錐頂,罐頂坡度多為1 16。弱頂罐一般設置呼吸閥,但開啟壓力很低。式(9)用于一般固定頂結構,是一種臨界狀態,在某種意義上也覆蓋 弱頂 。當P f 達到預定值后,抗壓環就會失穩破壞。,(3)式(1)和式(9)涉及在塑性狀態下的屈曲,按API 650附錄F 規定,其抗壓環材料屈服強度為220M Pa 。當材料的實際屈服強度高于235M Pa 時,抗壓環的承壓能力會相應提高。從安全角度考慮,式(1)和式(9)均未考慮儲液的反提離作用,危險狀態為基本無儲液而油氣壓力又較高的狀態。,(4)抗壓環的抗屈曲能力與D 2成反比,與截面面積A 成正比,與tg 成正比。相對而言,錐頂罐容易失穩,特別是罐頂斜度為1 16( 角不足3.6 )的錐頂罐容易失穩。而拱頂罐 角一般在30 左右,不容易失穩。大直徑罐不僅容易失穩。,

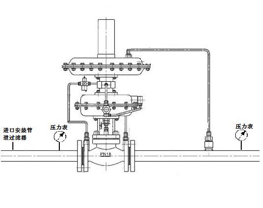
氮封的作用是防止儲罐揮發性有毒或可燃氣體泄放到罐外危害安全,以一定的微壓氮氣在罐內保持一定的壓力,相比自力式閥 氮封閥可以從閥前的幾公斤壓力一次性減壓到需要的微正壓,應用自力式閥可能會需要多級降壓才能達到這么小的壓力和精度。該閥主要用于儲罐頂部氮氣壓力恒定控制,以保護罐內物料不被氮化及儲罐安全。
氮封裝置氮封閥由ZZDG恒壓用供氮閥及ZZDX泄壓用泄氮閥兩大部分組成。泄氮閥由壓力控制器及單座切斷閥組成。
儲罐內壓力升高至設定壓力時,泄氮閥迅速開啟,將罐內多余壓力泄放。供氮閥在儲罐內壓力降低時,開啟閥門,向罐內充注氮氣。因供氮閥又稱微壓調節閥必須使用在壓力為0.1Mpa壓力以下,現場壓力較高,必須安裝ZZYP型壓力調節閥將壓力調節閥將壓力降低至0.1Mpa以下才可使用。公稱壓力0.1Mpa,壓力可按分段設定,從0.5Kpa 至66 Kpa以下,介質溫度溫度≤80℃。,


另外,這種方式可能對雙接口呼吸閥的精度要求很高,對前道減壓環節的壓力調節機構要求也很高。因為用氮封閥的原理是與罐內壓力反饋來自動達成壓力平衡的,而上述這種方式應該有所不同。一旦輸入的氮氣壓力過大或過小,可能會出現問題。,

(1)開啟閥前截止閥,使介質緩慢流入閥體
(2)擰開指揮器護罩,松開指揮器調節螺釘
(3)調節指揮器主彈簧,使閥后壓力至設定值
(4)固定指揮器調節螺釘,裝好護罩,調壓閥即可開始工作
(5)不用時,關閉閥前截止閥與本文相關的論文:自力式煤氣調壓閥組