
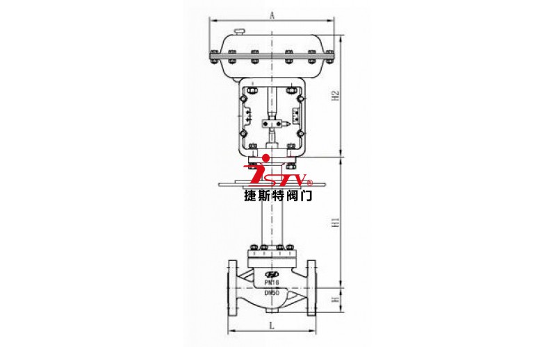
氣動薄膜低溫調節閥概述:
氣動薄膜低溫調節閥適用于介質溫度-40℃~ -196℃(如液氧、液氮等)的低溫、深冷場合,主要由多彈簧氣動薄膜執行器與帶長頸接管的閥體組成,采用長頸型上閥蓋的作用,使填料處于常溫下工作,并減少外界熱能傳入,為減少傳遞,長頸一般采用薄壁結構,具有良好的耐低溫性,特別用于精確控低溫氣體、流體(如液氧、液氬等)的工藝參數保持在給定值。
氣動薄膜低溫調節閥特點:
氣動薄膜低溫調節閥由于使用的場所屬于相對嚴酷的工況,對零件的加工進行嚴格的質量控制,經特殊的低溫處理,以保證閥門在低溫工況時不脆裂,經得起低溫介質沖擊,被廣泛用于冶金、空分、制氧、石油、化工等低溫、深冷場合。
氣動薄膜低溫調節閥參數:
| 閥體 | |
| 形 式 | 直通鑄造球型閥 |
| 公稱通徑 | 20、25、32、40、50、65、80、100、125、150、200、250mm |
| 公稱壓力 | PN16、40、64bar |
| 法蘭標準 | JB/T79.1-94、792-94等 |
| 材 料 | 鑄鋼、不銹鋼等 |
| 上 閥 蓋 | 低溫型:-60--196℃ 超低溫型:-250℃ |
| 閥蓋形式 | 螺栓壓緊式 |
| 填 料 | V型聚四氟乙烯填料、V型柔性石墨填料 |
| 結構形式 | 加長桿 |
| 閥內組件 | |
| 閥芯型式 | 單座式、套筒式 |
| 流量特性 | 等百分比特性和線性特性 |
| 材 料 | 不銹鋼、不銹鋼堆司太萊合金、鈦和耐腐蝕臺金等。 |
氣動薄膜低溫調節閥執行器:
| 執行機構 | |||||
| 型 式 | ZHA/B多彈簧薄膜執行機構 | ||||
| 型 號 | ZHA/B-22 | ZHA/B-23 | ZHA/B-34 | ZHA/B-45 | ZHA/B-56 |
| 有效面積cm2 | 350 | 350 | 560 | 900 | 1400 |
| 行程mm | 10、16 | 25 | 40 | 40、60 | 100 |
| 彈簧范圍KPa | 20-100(標準)、20-60、60-100、40-200、80-240 | ||||
| 膜片材料 | 丁晴橡膠夾尼龍布、乙丙橡膠夾尼龍布 | ||||
| 供氣壓力 | 140-400KPa | ||||
| 氣源接口 | RCl/4" | ||||
| 環境溫度 | -30-70℃ | ||||
| 閥作用形式 |
| 氣關式(B)- 失氣時閥位開(FO);氣開式(K)一失氣時閥位關(FC) |
| 附件 |
| 定位器、空氣過濾減壓器、保位閥、行程開關、閥位傳送器、手輪機構等 |